Villa a schiera in affitto

Formello, Via Magliano
€ 750 / mese
3 locali 3 locali
93 Mq 93 Mq
2 bagni 2 bagni

Villa a schiera in affitto

Formello, Via Magliano

Descrizione annuncio

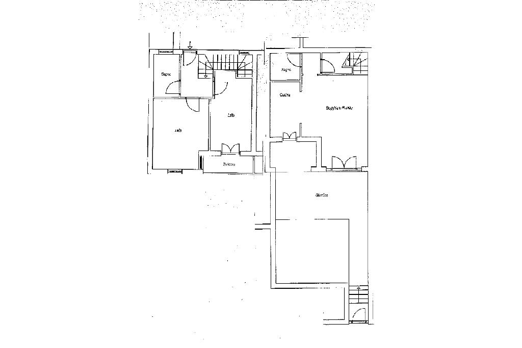
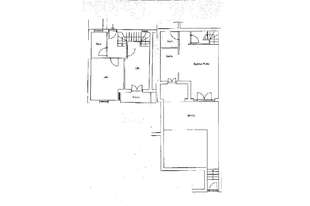
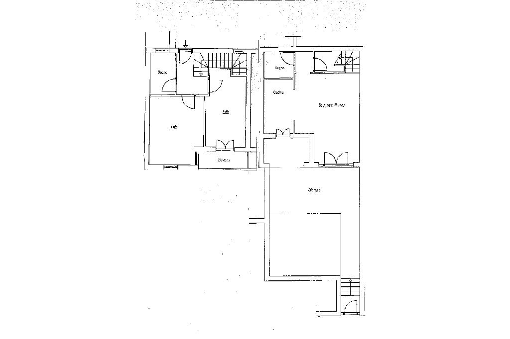
A Formello, nel complesso 'Borghetto La Cappella', proponiamo in affitto, un villino a schiera di circa 95 mq con giardino privato.

La villetta si sviluppa su due livelli ed è composta da due camere da letto e un bagno al primo piano e da cucina abitabile, soggiorno e bagno al piano terra.

Inoltre, la proprietà dispone di un giardino privato di circa 50 mq, ideale per godersi momenti di relax all'aria aperta.

La villetta è accessibile da due ingressi distinti, uno dal giardino privato e l'altro dall'ingresso della piazza principale del condominio.

L'immobile, inoltre, dispone di un posto auto coperto privato e di una cantina.

Il condominio, a pochi passi dal paese risulta molto tranquillo e riservato, dotato di tutti i servizi necessari e di zone verdi comuni.

L'intero complesso è stato costruito nel 2000 ed è appena stato riqualificato grazie all'istallazione di un cappotto termico, la coibentazione del tetto e il cambio di tutti gli infissi.

L'abitazione è totalmente ristrutturata e presenta doppi vetri in pvc e grate, porte in legno e pavimenti in parquet nelle camere e monocottura negli altri ambienti.
La fornitura dell'acqua è affidata all'acquedotto comunale, la fognatura è comunale mentre il riscaldamento da gas-metano diretto.

Punto di forza è la posizione, a soli 250 metri dal centro di Formello, dove troviamo tutti i servizi principali come bar, ristoranti, scuole e farmacia.

Il condominio ammonta a 70 al mese compreso il consumo dell'acqua.

Mostra tutto

Nelle vicinanze

Scuole Scuole
Istituto Comprensivo "Barbara Rizzo"
290 m
Marie Curie
2,1 Km
Farmacia Farmacia
Farmacia
310 m
Supermercati Supermercati
Carrefour
600 m
Negozi Negozi
Negozi
160 m
Bar Bar
Ice Club3
280 m
Ristoranti Ristoranti
Pizza al corso
260 m
La Maisonnette Ristrot
300 m
Pizzangrillo
310 m
Osteria Di Sopra
330 m
Mozzone
380 m
Mostra tutto

Caratteristiche

Rif.:
61132882
Piano:
1 di 1 (Piano terra con giardino)
Posti auto:
1
Balconi:
1
Camere da letto:
2
Arredamento:
Parziale
Mostra tutto
Prezzo Prezzo
€ 750 / mese
Spese annue Spese annue
€ 840

Classe Energetica

C
C
C
C
C
C
C
C
C
EP globale non rinnovabile:
71.48 kW h/m² anno
EP globale rinnovabile:
4.25 kW h/m² anno
EP invernale del fabbricato:
EP estiva del fabbricato:
Anno di costruzione:
2002
Riscaldamento:
Autonomo
Tipo impianto:
A radiatori
Tipo alimentazione:
Metano

Ti interessa visionare l'immobile?

Fissa un appuntamento  Fissa un appuntamento

Richiedi informazioni

* Questi campi sono obbligatori
Affiliato
Grupposabinaformello Srl
Via Pio La Torre, 10 00060 Formello (RM)

Il nostro staff


  • Federica Costanzi
    Coordinatrice

  • Federico Masci
    Affiliato
Via Pio La Torre, 10 00060 Formello (RM)
Zona: Formello
Mostra su mappa
Orari: 8:30 - 13:00 15:00 - 19:00
Affiliato
Grupposabinaformello Srl
Via Pio La Torre, 10 00060 Formello (RM)

2025 Tecnocasa Franchising S.p.A. - P. IVA 08365160152 - Via Monte Bianco 60/A 20089 Rozzano (MI). Ogni agenzia ha un proprio titolare ed è autonoma. Privacy policy | Policy utilizzo | Cookie policy