Villa a schiera d'angolo in vendita

Formello, Via Magliano
€ 305.000
5 locali 5 locali
178 Mq 178 Mq
2 bagni 2 bagni

Villa a schiera d'angolo in vendita

Formello, Via Magliano

Descrizione annuncio

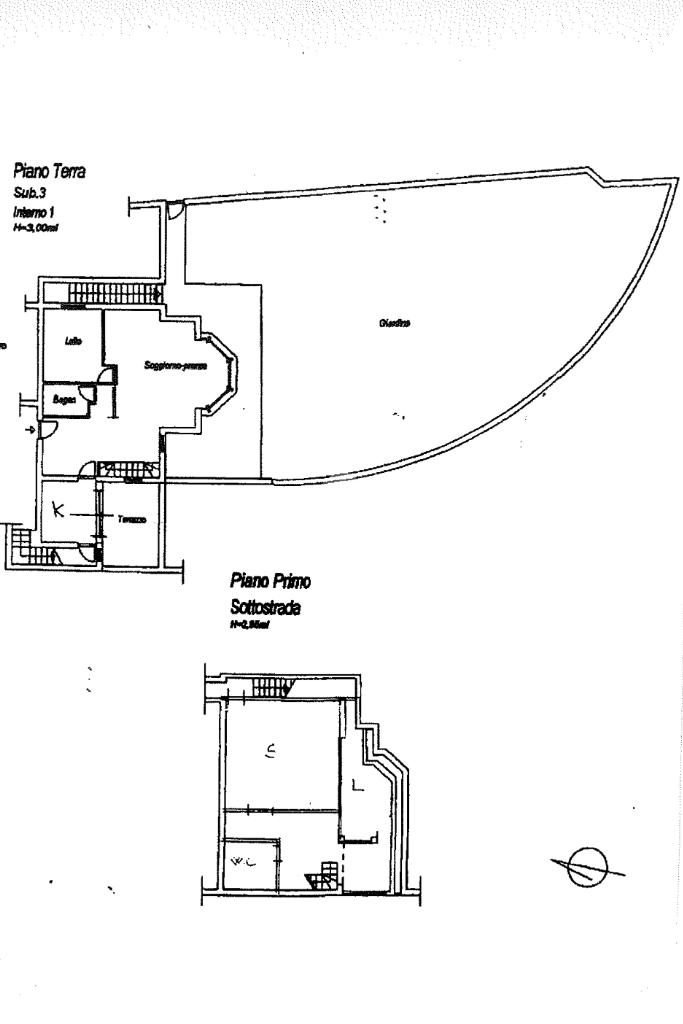
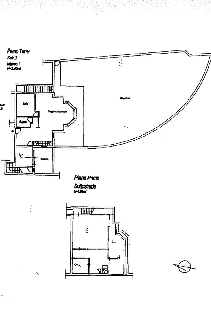
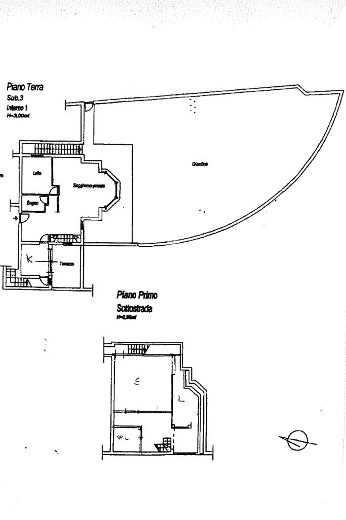
Proponiamo in vendita una splendida villetta a schiera di 178 mq, caratterizzata da ampi spazi, ottima esposizione e un contesto riservato e tranquillo, ideale per chi desidera comfort e indipendenza.

L’immobile è dotato di ingresso indipendente carrabile, che consente un accesso comodo e diretto alla proprietà, con la possibilità di usufruire di posti auto privati all’interno dell’abitazione e un ulteriore posto auto coperto ad uso esclusivo. L’esposizione a sud garantisce un’eccellente luminosità naturale durante tutto il giorno, valorizzando ogni ambiente della casa.

A rendere questa soluzione ancora più interessante è il giardino pianeggiante di circa 400 mq, curato e arricchito da diverse piante ornamentali, uno spazio perfetto per vivere momenti all’aperto in totale relax, per famiglie, bambini o per chi ama il verde.

L’accesso all’abitazione avviene al piano principale, dove troviamo un ampio e luminoso salone, ideale come zona living, una camera matrimoniale, un bagno e una cucina abitabile con accesso diretto a un comodo terrazzino.

Scendendo al piano inferiore, si sviluppa un grande ambiente versatile, facilmente adattabile alle diverse esigenze: può essere utilizzato come taverna, sala hobby oppure trasformato in un secondo appartamento con ingresso indipendente esterno già esistente. E' presente anche un ulteriore bagno. Questo livello rappresenta un valore aggiunto importante, perfetto per chi necessita di spazi separati o per soluzioni multifamiliari.

La proprietà si distingue per la funzionalità degli ambienti, la luminosità e gli ampi spazi esterni, offrendo una soluzione abitativa completa e pronta ad accogliere ogni esigenza.

L’immobile si trova infatti all’interno di un condominio curato e ben gestito, a pochi chilometri dal centro del paese, posizione ideale per chi desidera vivere in un ambiente riservato senza rinunciare alla comodità dei principali servizi.

Mostra tutto

Nelle vicinanze

Scuole Scuole
Istituto Comprensivo "Barbara Rizzo"
280 m
Marie Curie
2,1 Km
Farmacia Farmacia
Farmacia
300 m
Supermercati Supermercati
Carrefour
590 m
Negozi Negozi
Negozi
150 m
Bar Bar
Ice Club3
260 m
Ristoranti Ristoranti
Pizza al corso
250 m
La Maisonnette Ristrot
290 m
Pizzangrillo
300 m
Osteria Di Sopra
320 m
Mozzone
370 m
Mostra tutto

Caratteristiche

Rif.:
61202792
Piano:
Terra con giardino di 2
Totale piani:
2
Posti auto:
3
Terrazzi:
1
Camere da letto:
2
Mostra tutto
Prezzo Prezzo
€ 305.000
Rata mutuo Rata mutuo
€ 1.448 / mese
Spese annue Spese annue
€ 1.080
Proponi il tuo prezzoProponi il tuo prezzo

Classe Energetica

A1
A1
A1
A1
A1
A1
A1
A1
A1
EP invernale del fabbricato:
EP estiva del fabbricato:
Anno di costruzione:
2000
Riscaldamento:
Autonomo
Tipo impianto:
A radiatori
Tipo alimentazione:
GPL

Ti interessa visionare l'immobile?

Fissa un appuntamento  Fissa un appuntamento

Richiedi informazioni

Clicca su Leggi per aprire l'informativa
* Questi campi sono obbligatori

Calcola il tuo mutuo

Semplice e senza impegno
Anticipo

( % )
Mutuo

( % )

pochi semplici passi

inserisci i tuoi dati
Questionario completato
Grazie per aver richiesto un appuntamento senza impegno con un nostro Consulente del Credito e Assicurativo.

Hai inserito correttamente tutti i dati necessari e a breve riceverai una e-mail con un link da convalidare per inviare i tuoi dati.
Affiliato
Grupposabinaformello Srl
Via Pio La Torre, 10 00060 Formello (RM)

Il nostro staff


  • Federica Costanzi
    Coordinatrice

  • Federico Masci
    Affiliato
Via Pio La Torre, 10 00060 Formello (RM)
Zona: Formello
Mostra su mappa
Orari: 8:30 - 13:00 15:00 - 19:00
Affiliato
Grupposabinaformello Srl
Via Pio La Torre, 10 00060 Formello (RM)

2026 Tecnocasa Franchising S.p.A. - P. IVA 08365160152 - Via Monte Bianco 60/A 20089 Rozzano (MI). Ogni agenzia ha un proprio titolare ed è autonoma. Privacy policy | Policy utilizzo | Cookie policy